площадью 140,70 м2, по цене 66410400 по адресу Золоторожский Вал - 11стр1

Цена 66 410 400 р.
Район Лефортово
Адрес Золоторожский Вал, 11стр1
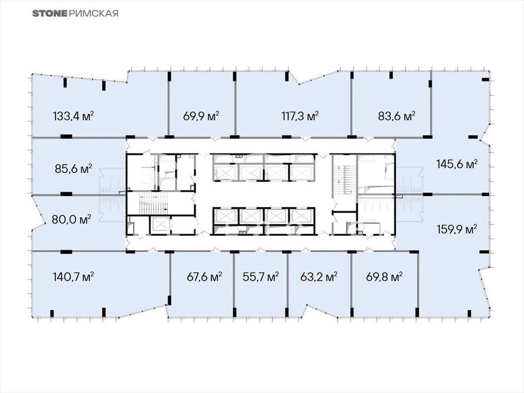
Площадь помещения 140,7 м2
Рассрочка 0% до окончания строительства В реализации - офисы в составе бизнес-центра класса А STONE Римская напрямую от застройщика STONE, лидера офисного рынка. Планировки соответствуют требованиям функционального офиса: глубина помещения - до 10 м, высота потолков - 3,65 м, шаг колонн - 8,4 х 8,4 м, отделка Shell&Core. Окна в пол обеспечат оптимальный уровень инсоляции и предусматривают возможность естественного проветривания. Строящийся пересадочный хаб обеспечит прямой доступ как в районы Подмосковья, так и в центр: 29 мин. - до Москва-Сити по МЦД-4 без пересадок, 20 мин. - до ст. м. «Белорусская». Транспортная доступность: - 3 мин. от ст. м. «Римская» и «Площадь Ильича» - 1 ст. м. до Садового кольца - 3 мин. до ТПУ «Серп и Молот» - 900 м до ТТК Архитектурную концепцию бизнес-центра разрабатывает бюро WALL. STONE Римская будет состоять из двух офисных башен, объединенных двухуровневым стилобатом, где разместится необходимая инфраструктура. Среди запланированных объектов - кафе и рестораны, столовая с открытым доступом, фитнес-студия, аптеки, банкоматы. STONE Римская реализуется в концепции Healthy building - здания, которые способствуют физическому, ментальному и социальному благополучию его резидентов. В числе ключевых характеристик концепции, позитивно влияющих на продуктивность сотрудников - уровень инсоляции, количество и качество воздуха, а также элементы биофильного дизайна. STONE - девелопер коммерческой и жилой недвижимости классов бизнес+ и премиум в Москве. С 2022 года занимает лидирующую позицию на офисном рынке (рейтинг РБК) . За 18 лет компания вывела на рынок 28 проектов. Компания имеет самый масштабный проектный портфель офисной недвижимости класса А на московском рынке (данные NF Group) и возглавляет топ-6 устойчивых девелоперов, согласно исследованию FResearch (Forbes) . ID. 19670
Объявление № 23441283
Дата подачи:
21 октября 2025 г. 3:21
Дата обновления:
20 октября 2025 г. 4:00
Просмотров 7 Хотите продать быстрее?

Продавец
Отдел продаж
Показать номер телефона
Пожаловаться
Комментарии:
Добавить